Обяви За нас Контакти
Продава 3-СТАЕН
град София, Овча купел
265 000 €
518 294.95 лв.

(2 103 €, 4 113.11 лв./m2)
Цената е с включено ДДС
Коригирана в 18:41 на 23 февруари, 2026 год.
Обявата е посетена 239 пъти.
Площ:
126 m2
Етаж:
3-ти от 6
Газ:
ДА
Строителство:
Тухла, Ще бъде въведен в експлоатация 2026 г.

Описание на имота:


БЕЗ КОМИСИОН К - КОНСУЛТ продава голям 3-стаен апартамент в старата - елитна част на кв. Овча купел.
Намира се на тиха и зелена улица, в близост до ул. Любляна, с бърз достъп до бул. Цар Борис III, бул. Никола Петков и бул. Овча Купел.
Близостта до Фантастико, множество спирки на градски транспорт, разнообразни търговски обекти, 66-то СУ 'Филип Станиславов', правят локацията още по-желана.

Сградата е с АКТ14 и е част от проект с две сгради, с прекрасен озеленен вътрешен двор, като всяка от тях е с по два апартамента на етаж.
Изграждат се с качествени и устойчиви на времето материали:
- тухли Wienerberger
- топлоизолация XPS 12 см. на Baumit и минерална мазилка Baumit.
- вентилируема покривна система с битумни керемиди
- 5-камерна PVC дограма
редвидени са с представителна фасада
Общите части са луксозни с гранит, дизайнерско осветление и асансьори Orona.

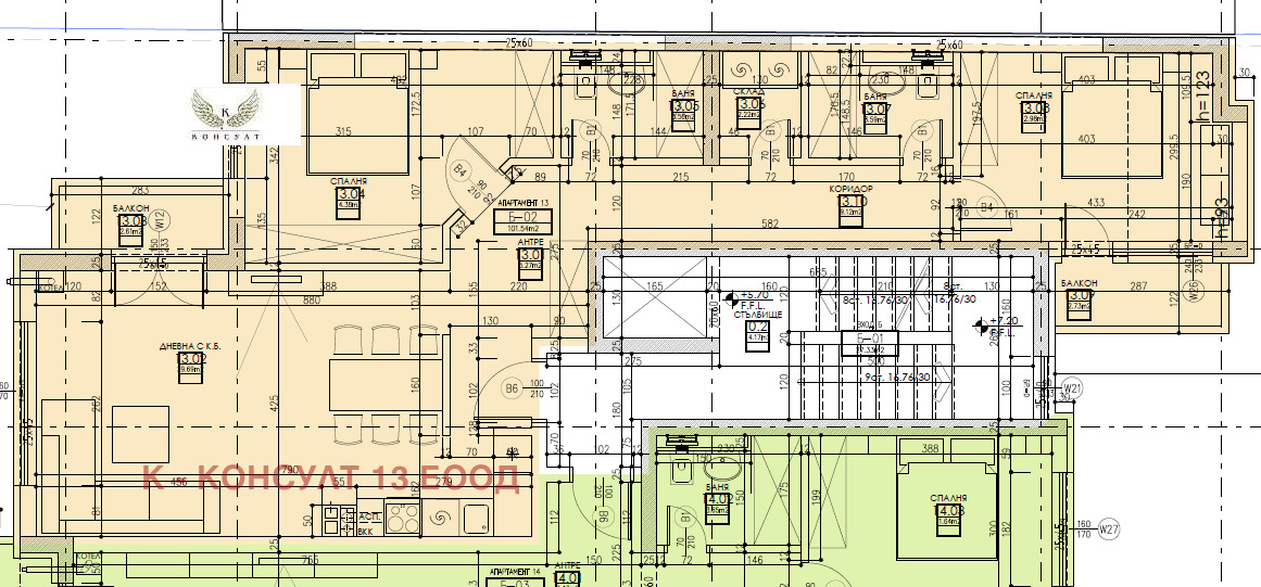
Посоченият апартамент е с чиста жилищна площ 102кв.м. и се състои от: Входно антре, дневна с кухненски бокс, коридор, две спални, две бани с тоалетна, склад и два балкона.
Изложение: Дневна-юг и спални-запад.

Възможност за закупуване на гараж и/или паркомясто.

К - КОНСУЛТ предлага цялостно висококачествено довършване до ключ от фирма ROKAR Standart.
Имотът е изключително атрактивен, както за закупуване за собствено ползване, така и с цел инвестиция с висока доходност.

За информация и оглед - инж. Кирилия Кирилова - 0887736319
Особености
Тухла
Асансьор
Интернет връзка
Видео наблюдение
Контрол на достъпа
Саниран
За контакт:
0883394409
Строителна фирма:
К - КОНСУЛТ 13 ЕООД
0883394409
К - КОНСУЛТ 13 ЕООД logo
Медал за прослужено време
В imot.bg от 2007 г.
kconsult.imot.bg
Адрес:
област София, гр. София, гр. София, бул. Гоце Делчев 102
ИЗПРАТИ ЗАПИТВАНЕ
ИЗПРАТИ ЗАПИТВАНЕТО

Продава 3-СТАЕН
град София, Овча купел
Обява: 1c175388969572859

265 000 €
518 294.95 лв.
(2 103 €, 4 113.11 лв./m2)

Цената е с включено ДДС
ЗАПАЗИ ОБЯВАТА

Местоположение: град София, Овча купел

Допълнителни данни за имотите в района и сравнение с други райони

Покажи

Период

и 3 месеца

* Средните цени са определени чрез медианна стойност